1.F Модель диссоциацияланған және MBR Модель моноблокты күйдіргіштерін қайта орнатуға болады. Нақты модельдер төмендегідей:
FOL2800、FOL2500、FOL1600、FOL1500、FOL1000、FOL750、
FL2800、FL2500、FL1600、FL1500、FL1000、FL750、
MBROL2800、MBROL2500、MBROL1600、MBROL1500、MBROL1000、MBROL750、
MBRL2800、MBRL2500、MBRL1600、MBRL1500、MBRL1000、MBRL750、
2.Конфигурация
Жоқ. | Элемент | Қатты. | Ескерту |
1 | Табиғи газ зеңбірегі | Кейінірек | Қару саны әртүрлі модельдерге байланысты |
2 | Табиғи газ дефлекторы | 1 | |
3 | Табиғи газ сақинасы | 1 | Алдын ала бапталғанын тексеру керек |
4 | Табиғи газ ағынын басқару клапаны | 1 | |
5 | Табиғи газ клапандары тобы | 1 | |
6 | Табиғи газ құбырлары | 1 | Жұмыс орнындағы клиенттің дайындығы қажет |
7 | Басқару жүйесін қайта жабдықтау | 1 | Siemens ағып кетуді анықтау контроллері, реле тұтқасы және т.б. |
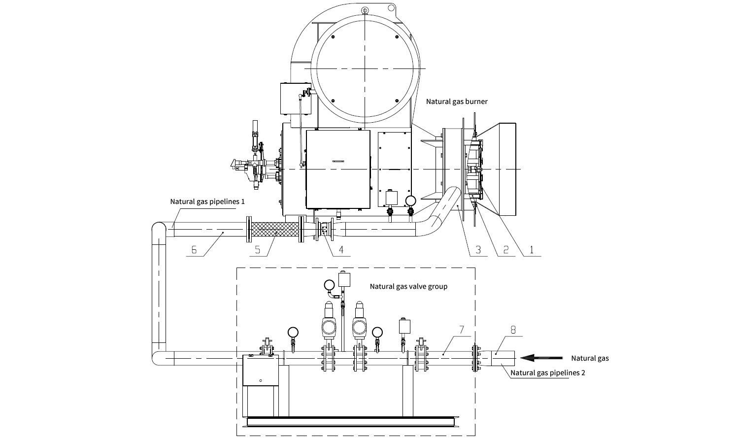
3.Схемалық диаграмма

Жоқ | Атауы |
1 | Табиғи газ зеңбірегі |
2 | Табиғи газ дефлекторы |
3 | Табиғи газ сақинасы |
4 | Табиғи газ ағынын басқару клапаны |
5 | Металл толқынды құбыр |
6 | Табиғи газ құбырлары 1 |
7 | Металл толқынды құбыр (natural gas valve group) |
8 | Табиғи газ құбырлары 2 |
4. Табиғи газ күйдіргішінің параметрлері
Модель | Қуат (кВт/макс) | Максималды газ тұтыну (Нм³/сағ) | Калорикалық құндылығы (KJ/ Nm³) | Қысым (mbar) | Кіріс диаметрі | Ескерту |
F/MBR-G-2800 | 30000 | 3120 | 34750 | 600 | DN125 | DN150 Тасымалдау құбырының диаметрі DN150-ден кем болмауы тиіс |
F/MBR-G-2500 | 26700 | 2780 | 34750 | 600 | DN125 | |
F/MBR-G-1600 | 17900 | 1850 | 34750 | 600 | DN125 | |
F/MBR-G-1500 | 13400 | 1390 | 34750 | 600 | DN125 | DN125 Тасымалдаушы құбырдың диаметрі DN125-тен кем болмауы тиіс |
F/MBR-G-1000 | 11200 | 1150 | 34750 | 600 | DN125 | |
F/MBR-G-750 | 8900 | 925 | 34750 | 600 | DN125 |
5. Жоба ісі
1) Қазақстан #1009 Burner жаңартуы
Диссоциацияланған ауыр май+дизель майын жанғышты мұнай (ауыр / дизель мұны) газы (табиғи газ) қос функциялы диссоциацияланған жанғышқа қайта жабдықтау үшін, бұл жану үшін табиғи газды қолдануға мүмкіндік береді
Тапсырыс берушінің құрылыс алаңында газ жеткізіледі. Бензиннің бағасы дизельге қарағанда қолайлырақ және экологиялық таза.
2) Ресей Burner жаңартуы
#1226-ның табиғи газ жанғыштары мен клапан топтары #815 локомотивін табиғи газ жағығыштарын жаңарту үшін қабылданды














